Trebuie să introduci minim 3 caractere pentru a putea cauta
Coșul meu
Coșul este gol!

ELEVATOR 2 COLOANE 5T DEBLOCARE AUTOMATA - 380 V

ELEVATOR 2 COLOANE 5T CU DEBLOCARE AUTOMATA 380 V

ELEVATORUL 2 COLOANE 5T DEBLOCARE AUTOMATA 380V are o capacitate maxima de ridicare pana la 5 tone, potrivit pentru masini mici si autoutilitare mici. Elevatoarele automate au un avantaj foarte mare, un control sporit in procesul de ridicare sau coborare datorita panoului de control cu butoane fara a fi nevoie de a elibera blocatoarele manual pe fiecare coloana. La acest model, ambele brate de ridicare au electromagneti care elibereaza automat blocatoarele cand apasati butonul de coborare din panoul de control.

  • Raza de ajustare

Datorita ajustarii, elevatorul este compatibil si cu autoutilitarele. Distanta de ajustare este cuprinsa intre 690-1760mm.

  • Confort de lucru
Bratelele de ridicare sunt asimetrice si asigura echilibru pentru vehicul in timpul ridicarii. Ajustarea telescopica din 3 puncte permite ajustarea pentru a suporta masina adecvat.
  • Lant rezistent

Lanturile folosite la elevator sunt construite pentru a rezista multi ani. Au nevoie doar de verificari periodice.

  • Protectie pentru vehicul

Elevatorul este dotat cu tampoane de cauciuc pentru a proteja vehiculul in timpul ridicarii.

  • Siguranta

Blocatoarelor de calitate superioara asigura protectie in cazul unei defectari in sistemul de ridicare.

Cerintele de baza pentru pregatirea suprafetei de instalare a elevatorului cu doua coloane:

  • suprafata = 150cm x 500cm x 30cm
  • suprafata plana
  • grosimea minima a substratului = 30cm
  • clasa beton B25
  • 28 zile timp de asteptare pentru a se usca complet betonul

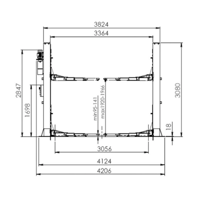
Date tehnice:

  • capacitate maxima de lucru = 5 tone
  • raza lungimii umarului = 690 – 1760mm
  • ridicare inaltime = 95 – 1966mm
  • timp de coborare = 25 secunde
  • timp de ridicare = 50 secunde
  • brate telescopice ridicare = 3 pozitii treptate
  • latimea maxima a vehiculului = 3056mm
  • putere motor = 2kW
  • alimentare = 380V
  • dimensiuni (inaltime x latime) = 4206 x 3080mm
  • dimensiuni baza coloana = 650 x 460mm
  • garantie = 2 ani
  • certificari UDT = da
Model :
GB238
Disponibilitate :
In stoc furnizor
16.758,50 Lei   cu TVA
13.850,00 Lei   fara TVA
Cantitate
Descriere produs

ELEVATOR 2 COLOANE 5T CU DEBLOCARE AUTOMATA 380 V

ELEVATORUL 2 COLOANE 5T DEBLOCARE AUTOMATA 380V are o capacitate maxima de ridicare pana la 5 tone, potrivit pentru masini mici si autoutilitare mici. Elevatoarele automate au un avantaj foarte mare, un control sporit in procesul de ridicare sau coborare datorita panoului de control cu butoane fara a fi nevoie de a elibera blocatoarele manual pe fiecare coloana. La acest model, ambele brate de ridicare au electromagneti care elibereaza automat blocatoarele cand apasati butonul de coborare din panoul de control.

  • Raza de ajustare

Datorita ajustarii, elevatorul este compatibil si cu autoutilitarele. Distanta de ajustare este cuprinsa intre 690-1760mm.

  • Confort de lucru
Bratelele de ridicare sunt asimetrice si asigura echilibru pentru vehicul in timpul ridicarii. Ajustarea telescopica din 3 puncte permite ajustarea pentru a suporta masina adecvat.
  • Lant rezistent

Lanturile folosite la elevator sunt construite pentru a rezista multi ani. Au nevoie doar de verificari periodice.

  • Protectie pentru vehicul

Elevatorul este dotat cu tampoane de cauciuc pentru a proteja vehiculul in timpul ridicarii.

  • Siguranta

Blocatoarelor de calitate superioara asigura protectie in cazul unei defectari in sistemul de ridicare.

Cerintele de baza pentru pregatirea suprafetei de instalare a elevatorului cu doua coloane:

  • suprafata = 150cm x 500cm x 30cm
  • suprafata plana
  • grosimea minima a substratului = 30cm
  • clasa beton B25
  • 28 zile timp de asteptare pentru a se usca complet betonul

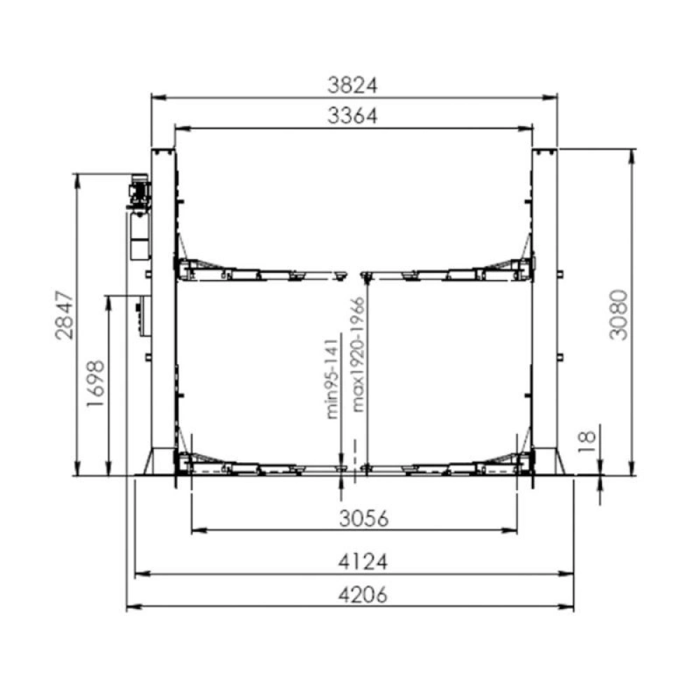
Date tehnice:

  • capacitate maxima de lucru = 5 tone
  • raza lungimii umarului = 690 – 1760mm
  • ridicare inaltime = 95 – 1966mm
  • timp de coborare = 25 secunde
  • timp de ridicare = 50 secunde
  • brate telescopice ridicare = 3 pozitii treptate
  • latimea maxima a vehiculului = 3056mm
  • putere motor = 2kW
  • alimentare = 380V
  • dimensiuni (inaltime x latime) = 4206 x 3080mm
  • dimensiuni baza coloana = 650 x 460mm
  • garantie = 2 ani
  • certificari UDT = da
Ce spun clientii nostri despre ELEVATOR 2 COLOANE 5T DEBLOCARE AUTOMATA - 380 V
Produse similare
Elevatoare cu doua coloane
Elevator mobil cu 2 coloane 4 tone
12.074,59 Lei
Elevatoare cu doua coloane
ELEVATOR 2 COLOANE 4T - 380 V
11.954,80 Lei
13.118,82 Lei
13.089,78 Lei
16.758,50 Lei
15.063,29 Lei
Aboneaza-te la newsletter
Aboneaza-te la newsletter pentru a fi la curent cu ultimele noutati si reduceri!